[UG 1] - STURT - STUDENT WORK
Nathan Schuppert
“Urban Expansion”
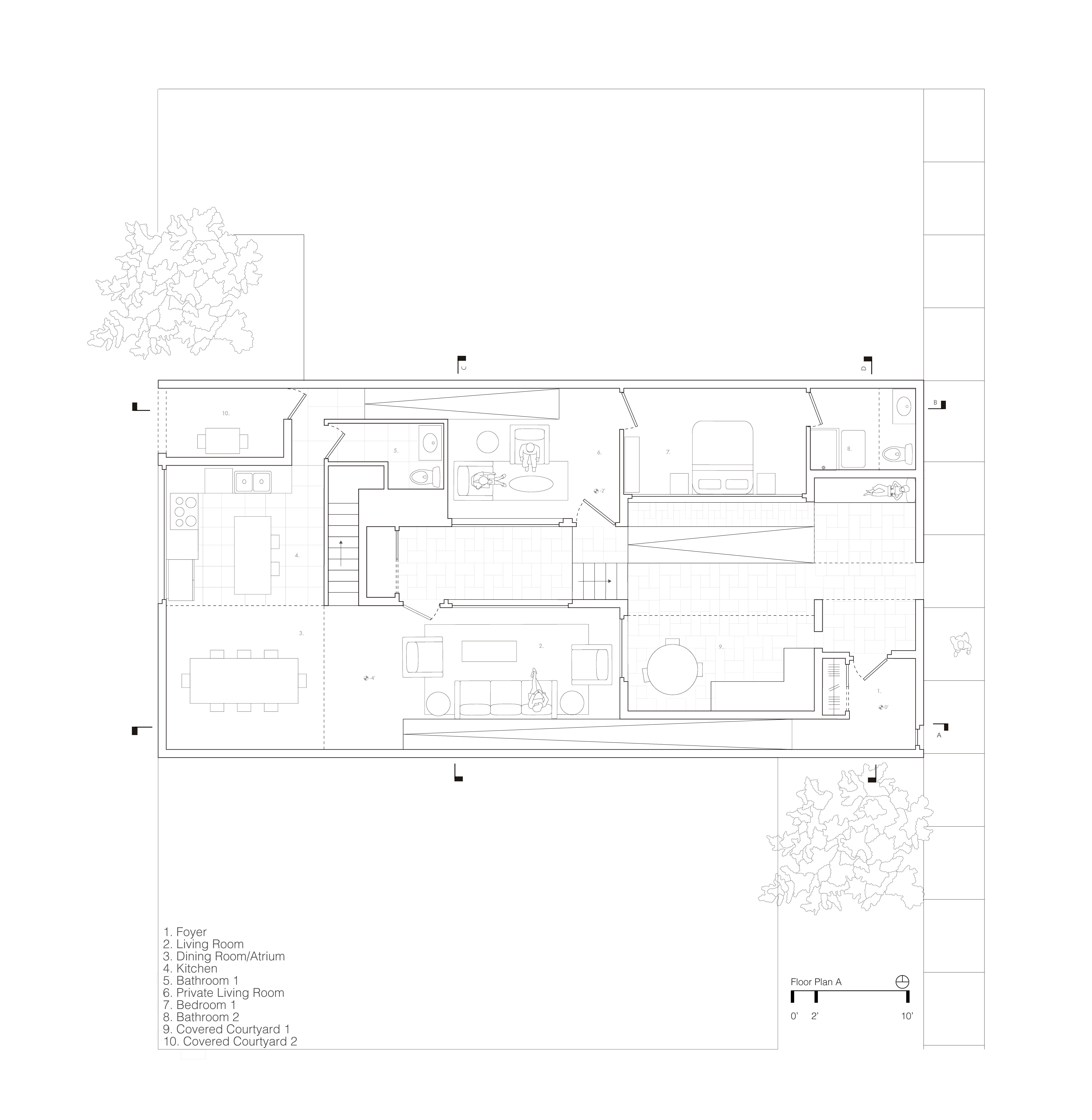
This multi-generation house explores the concepts of progressive expansion and compression. This is achieved through a logic of stepping that takes place in all axes, while being in conversation with the existing urban context.
This house structures its programmatic elements around its expansion. Comprising of two bands that progressively expand from private to public, weaving together until they unify as one. By structuring itself around a central courtyard that connects spaces through its voids, this house provides an interior space of radical transparency, contradicting its exterior presence. Doing so, it asks its occupants to look within, rather than to the outside world.








