[UG 1] - RIDA - STUDENT WORK
Nicole Tooley
“The Conservation Co-Op”
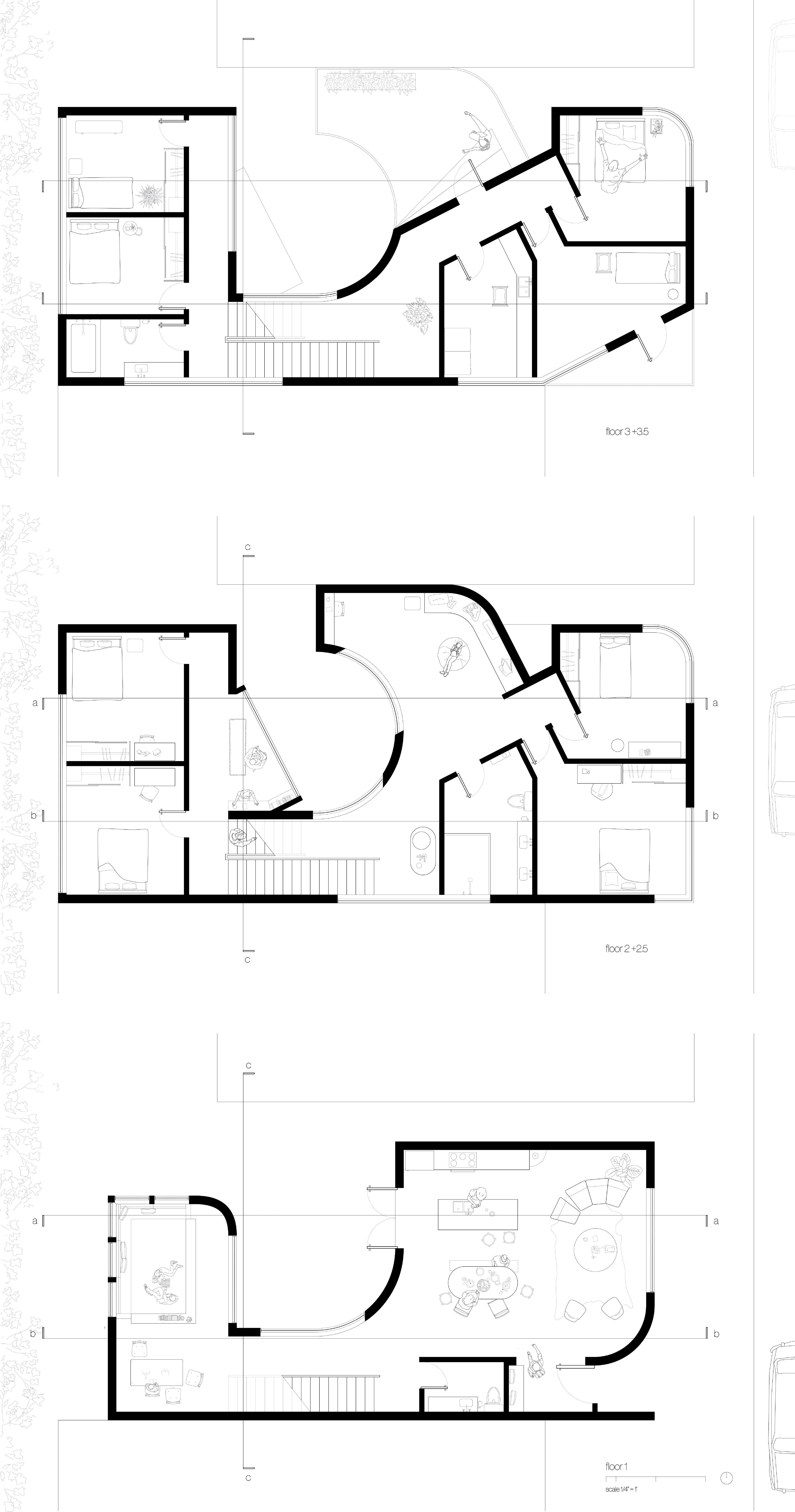
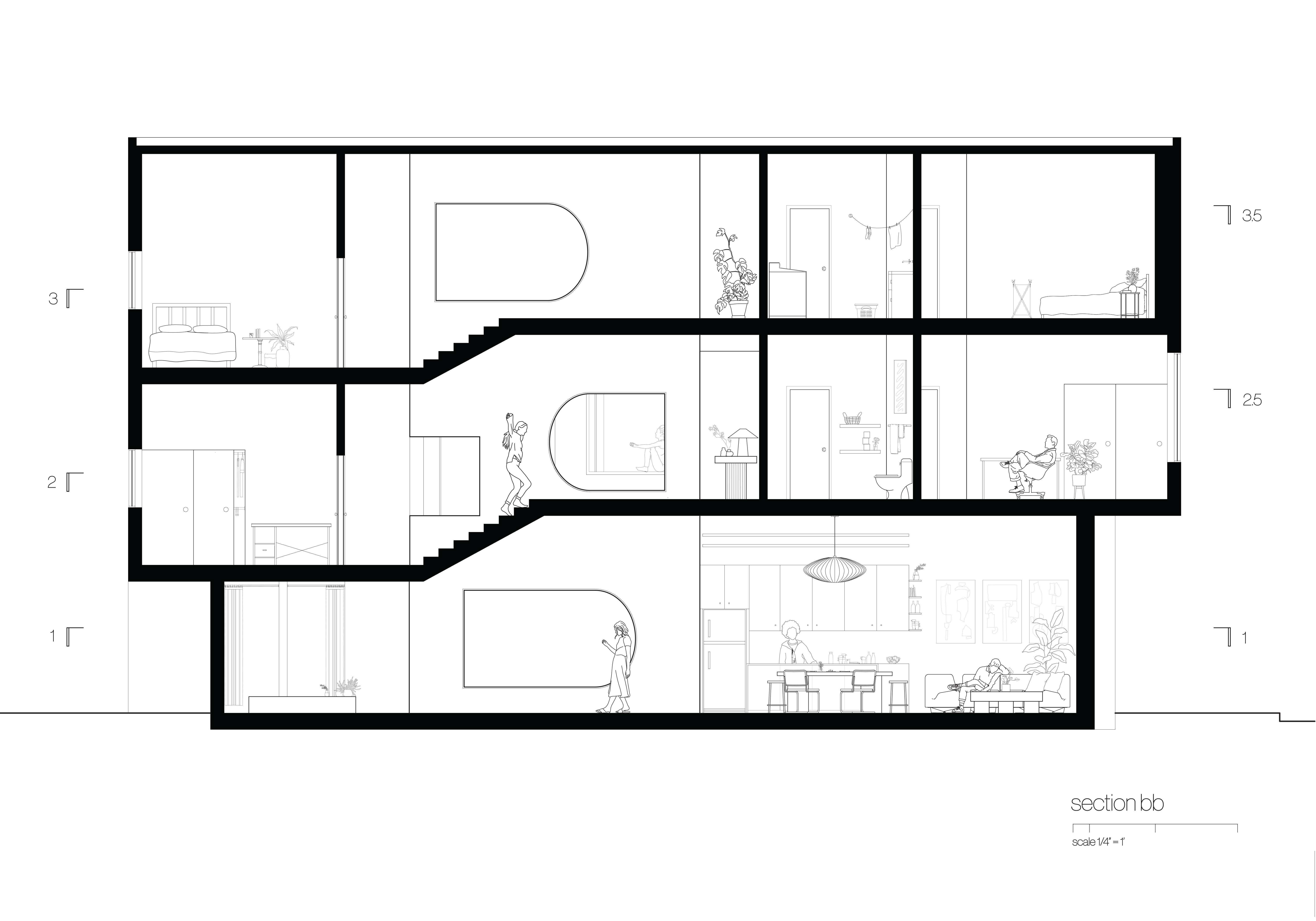
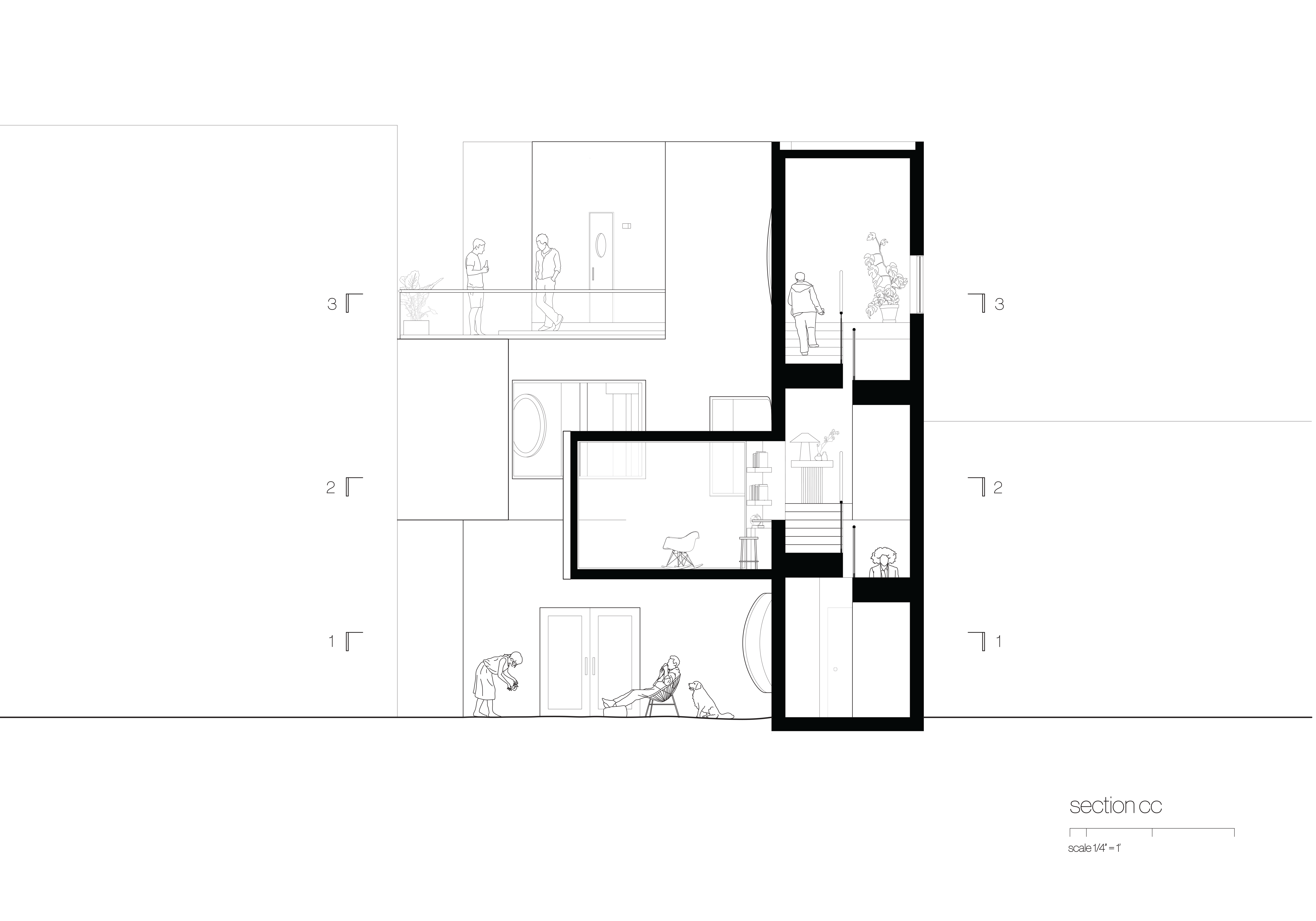
This cooperative house uses sight as a way to prompt spontaneous conversation among its eight house members. Designed in conversation with Johnston Marklee’s Vault House, but for a reimagined program and mid-density urban site in northern North America, this co-op adopts the language of a vista as a tool to draw inhabitants towards the frame’s subject. While Vault House prioritizes a singular exterior vista that creates a unique relationship between inhabitants and site, this project imagines bringing the vista to the inside—creating opportunities for interactions between fellow housemates.









MELISSA HARRIS
Emily Yi
Hazel Wolf
YOHAIRO LOMELI
Jacob Yu
Sophia Chen
SALAM RIDA
Nicole Tooley
Anna Jia
MIREILLE RODDIER
Emmalyn Kukura
Grieta Blaka
TORRI SMITH
Andrew Masternak
Eden Boes
JONO STURT
Sabrina Qingyuan Niu
Nathan Schuppert