[UG 1] HARRIS STUDENT WORK
Emily Yi
“Exhibition House”
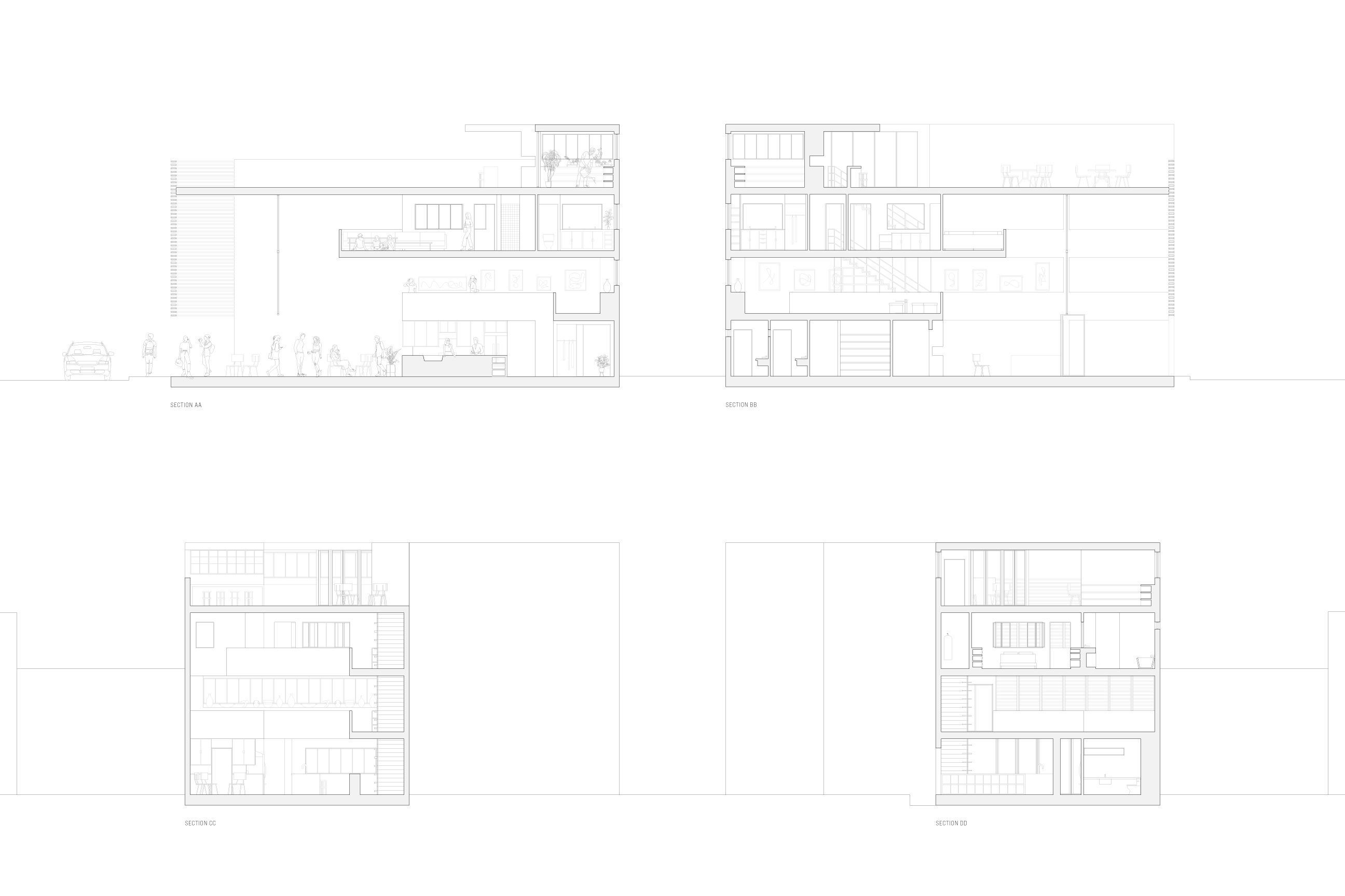
In designing an urban retreat, this project claims that its identity should come from its surrounding urban environment. As a result, this project can be interpreted as extensions of the street, the alleyway, the residential building on the north side, and the service building on the south side, all extending into a mass in the urban site and carve out the mass into habitable spaces that are the volumetric extension of the surroundings. This project proposes a new way of living that, rather than traveling through rooms, the inhabitant of this project is traveling through facades that defines the urban landscape as it is; rather than living in the house, the inhabitant is truly living in the urban landscape.








