Chenkun Ma
"Tiadaghton Forest Hall"
 
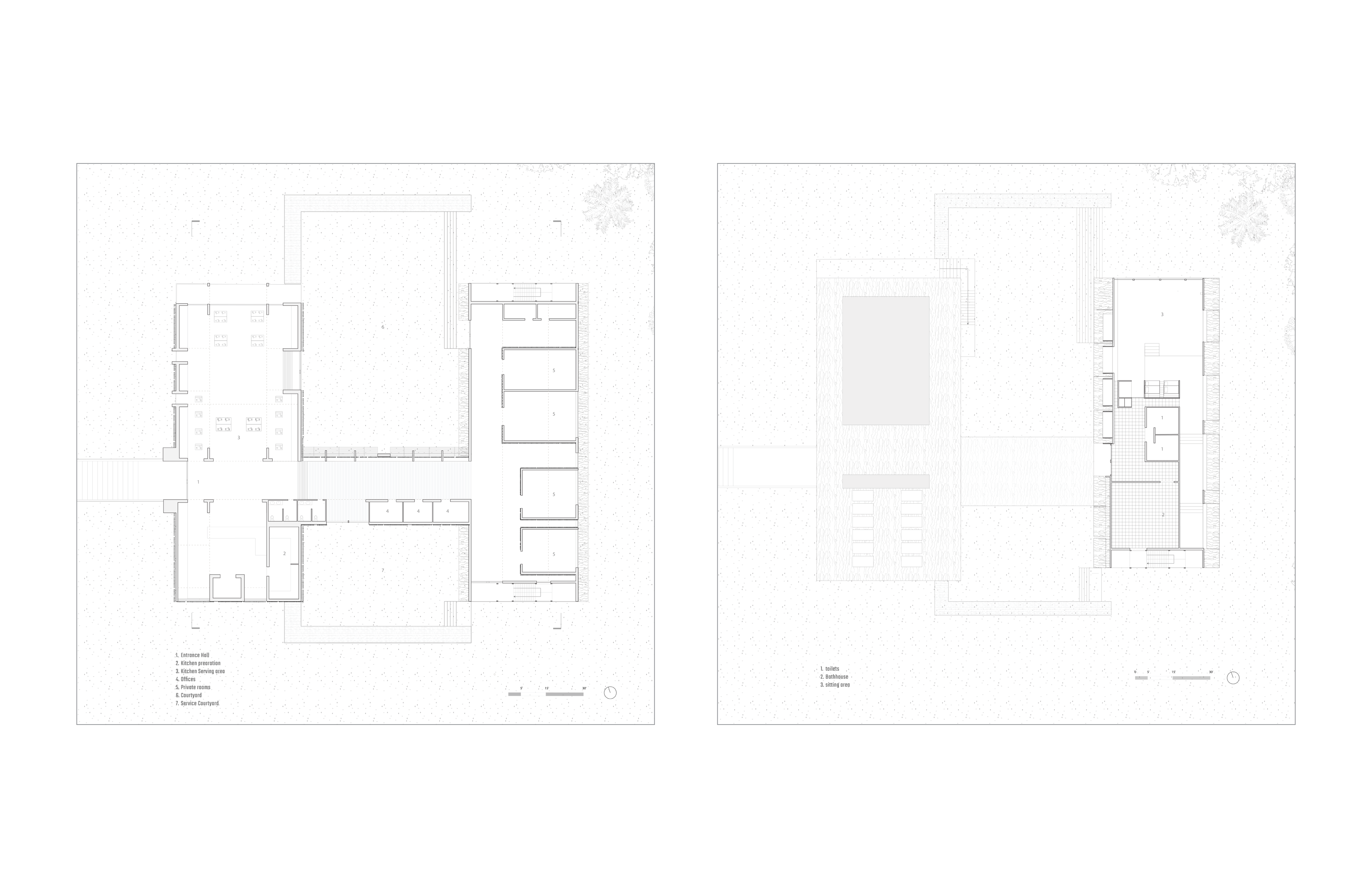
This Project aims to embrace the strange cultural heritage of wilderness and logging by reusing waste wood material. The facade utilizes modular assembly and material reuse to explore the layering effect of wood with consideration to the process of erosion. By providing a welcoming sleeping area for diverse people to stay temporarily, the hostel aims to provide spaces suitable for social interactions among backpackers, families, cyclists, and stargazers.
![]() 
![]() 
![]() 
![]() 
![]() 
![]() 
![]() 
 
 
 
 
 
 
 

